Beautiful 5 Bedroom House Designs with Plans for Modern Indian Homes
How to Guides
Feb 14, 2026
Designing a five-bedroom home is not about adding more rooms. It is about orchestrating space, privacy, movement, and lifestyle at a much larger scale. A well-planned five-bedroom house feels composed, not crowded. It balances togetherness and solitude, formality and comfort, openness and retreat.
In contemporary Indian homes, a 5 room home design often serves multi-generational families, evolving lifestyles, and flexible future needs. Bedrooms may function as master suites, children’s rooms, guest spaces, work-from-home zones, or rooms that change purpose over time.
This guide explores beautiful 5 bedroom house designs with plans, focusing on spatial zoning, layout logic, and architectural clarity rather than surface-level aesthetics.
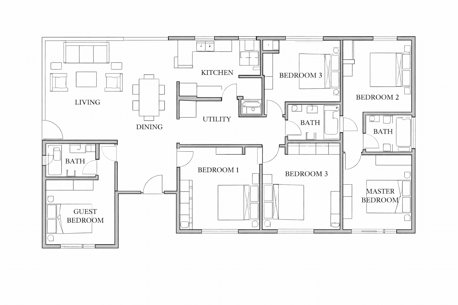
5 Bedroom House Designs with Plans
A five-bedroom home is defined by planning and zoning, not just size.
Successful layouts clearly separate public, semi-private, and private zones.
Common formats include single-floor homes, duplex layouts, and split-level designs, each suited to different plot sizes and lifestyles.
Bedrooms are planned with distinct roles such as master suites, children’s rooms, guest rooms, and flexible multi-use spaces.
Master bedrooms are typically positioned away from high-traffic areas for privacy.
Family lounges play a key role in reducing overuse of formal living spaces.
Kitchen and dining layouts focus on efficiency, clear zoning, and smooth circulation.
Thoughtful circulation planning avoids wasted corridors and improves daily comfort.
Natural light, ventilation, and outdoor connections are essential in large homes.
Storage planning is integrated into the layout to maintain visual calm.
In essence:
A well-designed 5 room home design feels balanced, flexible, and easy to live in, supporting multi-generational living and evolving lifestyles without feeling overwhelming.
What Defines a Well-Planned 5 Bedroom House
A successful five-bedroom house is not defined by size alone. It is defined by how intelligently space is distributed.
Key characteristics include:
Clear separation between public and private zones
Logical bedroom clustering
Efficient circulation without wasted corridors
Flexibility for future use
Strong relationship between indoor and outdoor spaces
In good design, bedrooms feel intentional, not leftover.

Zoning Strategy in 5 Bedroom House Designs
Before individual room planning begins, designers establish zoning. This step determines whether the home feels calm or chaotic.
Public Zone
Includes living room, dining area, family lounge, and guest-facing spaces. These areas are usually placed closer to the entrance.
Semi-Private Zone
Includes family lounges, study areas, and transition spaces that connect bedrooms.
Private Zone
Includes bedrooms and attached bathrooms. Privacy, acoustic control, and light quality are critical here.
Zoning is the backbone of every successful 5 room home design.

Common Layout Approaches for 5 Bedroom Houses
Single-Floor 5 Bedroom House Design

Single-floor layouts suit large plots and homeowners who prefer step-free living.
Design advantages:
Easy circulation
Strong indoor-outdoor connection
Ideal for senior-friendly homes
Bedrooms are often arranged in clusters, with the master suite positioned slightly away from common areas for privacy.
Duplex or Two-Storey 5 Bedroom House Design
This is one of the most popular formats for urban plots.
Typical planning logic:
Ground floor for public spaces and guest bedroom
Upper floor for family bedrooms
This layout offers better privacy control and efficient land use.
Split-Level 5 Bedroom House Design
Split-level homes work well on sloping sites or when zoning needs to be more nuanced.
Benefits include:
Visual separation without full floors
Dynamic spatial experience
Better light penetration
Bedroom Planning in a 5 Bedroom House
Master Bedroom Suite Design
The master bedroom in a five-bedroom home is usually more than just a sleeping space.
Common features:
Sleeping zone
Walk-in wardrobe or dressing area
Attached bathroom
Optional private balcony or sit-out
The master suite is typically positioned away from high-traffic areas.
Children’s Bedroom Design
Children’s rooms are planned with flexibility in mind.
Design considerations:
Storage adaptability
Study integration
Safe circulation
Scope for future transformation
In many homes, two of the five bedrooms are reserved for children, often placed close to each other.
Guest Bedroom Planning
Guest bedrooms are best placed near:
The entrance
Common living areas
Ground floor in multi-storey homes
This ensures privacy for both guests and residents.
Multi-Use Bedroom or Flexible Room
In modern 5 room home design, one bedroom often serves multiple purposes.
Possible uses:
Home office
Hobby room
Library
Elder’s room
Designers plan these rooms with neutral layouts so they can evolve over time.
Living and Family Spaces in 5 Bedroom Homes
Formal Living Room
The formal living room sets the tone of the house.
Design focus:
Strong visual connection to entrance
Defined seating
Controlled privacy from bedrooms
Family Lounge or Informal Living
A family lounge acts as the heart of a large home.
Design intent:
Casual seating
Connection to bedrooms
Comfortable lighting
In five-bedroom homes, this space reduces overuse of formal areas.
Dining and Kitchen Planning
Dining Area
Dining spaces in larger homes are often semi-open.
Design logic:
Easy access from kitchen
Visual connection to living areas
Comfortable circulation around the table
Kitchen Design
Kitchen planning focuses on efficiency and zoning.
Key zones:
Cooking
Preparation
Storage
Utility
In many five-bedroom homes, kitchens connect to utility areas and secondary circulation paths.
Circulation and Movement Planning

One of the biggest challenges in five-bedroom homes is circulation.
Good planning ensures:
Corridors are purposeful, not excessive
Movement paths are intuitive
Bedrooms are not used as thoroughfares
Designers often use:
Central staircases
Family lounges as transition nodes
Visual cues instead of long corridors
Staircase Design in Multi-Storey Homes
Staircases are not just functional elements. They influence how space is experienced.
Design considerations:
Positioning for easy access
Natural light
Visual openness
In many modern homes, staircases become architectural features.
Natural Light and Ventilation in 5 Bedroom House Plans
Larger homes require careful light planning to avoid dark zones.
Strategies include:
Courtyards
Skylights
Large windows in living areas
Balanced window placement in bedrooms
Each bedroom should receive adequate daylight without compromising privacy.
Bathrooms and Utility Planning
Five-bedroom homes typically include:
Attached bathrooms for most bedrooms
One or more common bathrooms
Utility or service areas
Designers ensure wet areas are efficiently stacked in multi-storey homes to maintain clarity.
Storage Planning in Large Homes
Storage is often underestimated in large houses.
Design-led storage includes:
Wardrobes integrated into bedroom layouts
Linen storage
Under-stair storage
Utility storage
Good storage planning keeps the home visually calm.
Outdoor Spaces in 5 Bedroom House Designs
Outdoor spaces enhance large homes significantly.
Common elements:
Front sit-outs
Private balconies
Courtyards
Terraces
These spaces provide breathing room and visual relief.
Style Direction for 5 Bedroom Homes
While layout is critical, style brings cohesion.
Popular approaches include:
Contemporary minimal
Modern Indian
Transitional
Tropical modern
Designers ensure style supports the scale of the house rather than overwhelming it.

Common Mistakes in 5 Bedroom House Planning
Experienced designers avoid:
Treating all bedrooms identically
Oversized corridors
Poor bedroom privacy
Ignoring future adaptability
Good design anticipates change.
Why Planning Matters More Than Size
A thoughtfully planned 5 room home design feels easier to live in than a poorly planned larger house.
Planning determines:
Comfort
Privacy
Daily efficiency
Long-term satisfaction
Final Thoughts on 5 Bedroom House Designs with Plans
A five-bedroom home represents a significant opportunity. When planned well, it supports multiple lifestyles under one roof without conflict or clutter.
The most beautiful 5 bedroom house designs are not defined by excess. They are defined by clarity, balance, and intention.
At Tint Tone and Shade, we approach five-bedroom homes as layered environments, designing layouts that feel calm and flexible.
Frequently Asked Questions on 5 Bedroom House Designs
1. What is the ideal layout for a 5 bedroom house?
There is no single ideal layout. A well-planned five-bedroom house focuses on clear zoning, separating public areas, family spaces, and private bedrooms. The layout should respond to plot size, orientation, and family structure.
2. Is a single-floor or duplex layout better for a 5 bedroom house?
Both work well. Single-floor layouts suit larger plots and step-free living, while duplex homes are ideal for urban plots, allowing better privacy by separating public and private floors.
3. How should bedrooms be distributed in a 5 bedroom house?
Bedrooms are usually assigned specific roles. The master bedroom is placed in a private zone, children’s rooms are often grouped together, a guest bedroom is positioned near common areas, and one room is kept flexible for future needs.
4. Can a 5 bedroom house feel spacious without being very large?
Yes. Good circulation planning, efficient storage, and well-proportioned rooms make a five-bedroom home feel open and comfortable regardless of overall size.
5. How important is zoning in a 5 bedroom home design?
Zoning is critical. Without clear zoning, large homes can feel disorganised. Proper zoning ensures privacy, smooth movement, and better daily functionality
6. Should all bedrooms in a 5 bedroom house be the same size?
Not necessarily. Bedrooms should reflect their function. Master bedrooms, guest rooms, and children’s rooms often differ in size and features based on usage.
7. Where should the guest bedroom be located?
Guest bedrooms are best placed near the entrance or on the ground floor in multi-storey homes. This allows privacy for both guests and residents.
8. Is it important to include a family lounge in a 5 bedroom house?
Yes. Family lounges reduce dependence on formal living rooms and create comfortable everyday spaces, especially in larger homes.
9. How does natural light affect 5 bedroom house planning?
Natural light improves comfort and reduces the need for artificial lighting. Designers use courtyards, windows, and open layouts to ensure every bedroom receives adequate daylight.
10. Can a 5 bedroom house be future-ready?
Yes. Flexible room planning allows bedrooms to evolve into home offices, hobby rooms, or elder-friendly spaces as family needs change.
Similar Topic







